Plenum

Model No. : APB

Specification:
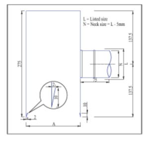
Plenum box made of high quality galvanized sheet of required gauge and 50mm spigot as standard. Insulation of required thickness and density as well as butterfly damper are available as options.

DESCRIPTION

  • Fabricated from 24, 22 or 20 gauge high quality glavanised steel sheet.
  • Circular spigots of required diameter and standard length of 50mm as standard can be fixed to the plenum box. Square, rectangle and oval shape spigots are available on request.
  • Plenum boxes with side inlet are standard. Other positions are available as per the site conditions to suit client specifications.
  • Plenum boxes of length upto two meters can be manufactured with single spigot. For more than 2 meters plenum boxes will be arranged with multiple spigots.
  • Volume control butterfly dampers can be fixed to the spigots on request.
  • Fixing brackets are provided at all four corners on the top side by default for hanging the plenum from ceiling.
  • Large size plenums can be specially manufactured on request.

Plenum Box Manufacturer in India | HVAC Air Distribution Plenum

Our Plenum Box is a vital component in modern HVAC systems, designed to ensure uniform air distribution and efficient airflow management. As a trusted Plenum Box manufacturer in India, we supply high-quality galvanized steel plenums that provide durability, flexibility, and superior performance for commercial, industrial, and residential applications across India.

Fabricated using premium galvanized steel sheets (24, 22, or 20 gauge), the Plenum Box in India offers excellent strength, corrosion resistance, and long-lasting reliability. The robust construction ensures consistent performance even in demanding HVAC environments.

Efficient Air Distribution in HVAC Systems

The HVAC Plenum Box plays a critical role in distributing air evenly from the duct system to diffusers or grilles. It acts as a pressure equalizing chamber, ensuring that air is distributed uniformly across all outlets.

The Plenum Box in India helps improve airflow efficiency, reduce turbulence, and enhance the overall performance of HVAC systems. This makes it an essential component in air conditioning and ventilation installations.

Flexible Spigot Options

The Plenum Box can be equipped with circular spigots of required diameter, with a standard length of 50 mm. Additionally, square, rectangular, and oval spigots can be provided based on project requirements.

This flexibility allows seamless integration with various duct shapes and sizes, making the Plenum Box in India suitable for a wide range of HVAC system designs.

Multiple Inlet Configurations

The standard design includes side inlet plenum boxes, but other inlet positions can be customized as per site conditions. This ensures that the plenum box can be adapted to different installation layouts and space constraints.

This customization capability makes it easy for HVAC consultants and contractors to design efficient air distribution systems.

Single and Multiple Spigot Designs

The Plenum Box in India can be manufactured with:

  • Single spigot for lengths up to 2 meters

  • Multiple spigots for lengths exceeding 2 meters

This design ensures balanced airflow distribution even in large installations, making it suitable for both small and large-scale HVAC systems.

Optional Volume Control Dampers

To enhance airflow control, the Plenum Box can be fitted with butterfly volume control dampers at the spigots. This allows precise regulation of airflow to individual outlets, improving system efficiency and air balancing.

This feature is particularly useful in applications where accurate airflow control is required.

Strong and Easy Installation Design

The Plenum Box in India is designed with fixing brackets at all four corners on the top side, allowing easy suspension from the ceiling. This ensures secure installation and proper alignment within the HVAC system.

The sturdy construction ensures that the plenum box remains stable during operation.

Durable Galvanized Steel Construction

Our Galvanized Steel Plenum Box in India is built to withstand environmental conditions and continuous airflow. The corrosion-resistant material ensures long service life and minimal maintenance.

The strong structure supports reliable performance in both commercial and industrial HVAC applications.

Suitable for Large and Custom Applications

The Plenum Box can be manufactured in large sizes and custom configurations to meet specific project requirements. This flexibility allows it to be used in a wide range of HVAC installations across India.

Applications Across India

Our Plenum Boxes are widely used in HVAC systems across India, including:

  • Commercial office buildings

  • IT parks and corporate spaces

  • Shopping malls and retail outlets

  • Hospitals and healthcare facilities

  • Hotels and hospitality projects

  • Airports and infrastructure developments

  • Industrial ventilation systems

  • Residential air conditioning systems

These applications require efficient air distribution solutions for optimal performance.

Why Choose Our Plenum Box in India?

  • Trusted Plenum Box Manufacturer in India

  • High-quality galvanized steel construction

  • Efficient air distribution and pressure equalization

  • Flexible spigot options (circular, square, rectangular, oval)

  • Custom inlet positions for site-specific installation

  • Single and multiple spigot configurations available

  • Optional butterfly dampers for airflow control

  • Easy installation with fixing brackets

  • Custom sizes available for HVAC projects

If you are looking for a reliable Plenum Box supplier in India, HVAC air distribution plenum manufacturer, or duct plenum box, our products deliver superior airflow performance, durability, and flexibility.

We proudly supply HVAC air distribution products across India, supporting contractors, builders, architects, and HVAC consultants with high-quality solutions designed for modern ventilation and air conditioning systems.

PRODUCT ORDER CHECKLIST

MODEL FLANGE INSULATION OPTIONS ACCESSORIES
MATERIAL THICKNESS DENSITY
APB 25 mm Fibre Glass 25 24 Butterfly
50 mm Nitrile Rubber 50 48 Damper

FIXING DETAILS