Model No. : ARL
Specification:
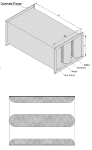
Rectangular Sound Attenuators made of high quality 1 mm thick Galvanized Sheet with 100 to 200 mm thick baffles consisting of 48 Kg/m3 density rockwool lined with RP tissue and perforated sheets and 150 to 200 mm air way gap as standard with V shaped entry and exit. Different specifications can be made to customer requirements based of sound attenuation requirements.
